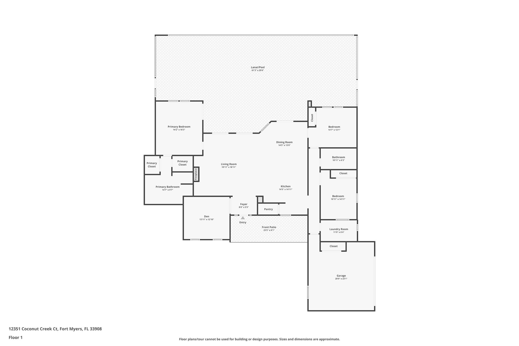
Floor 1
Floor 1