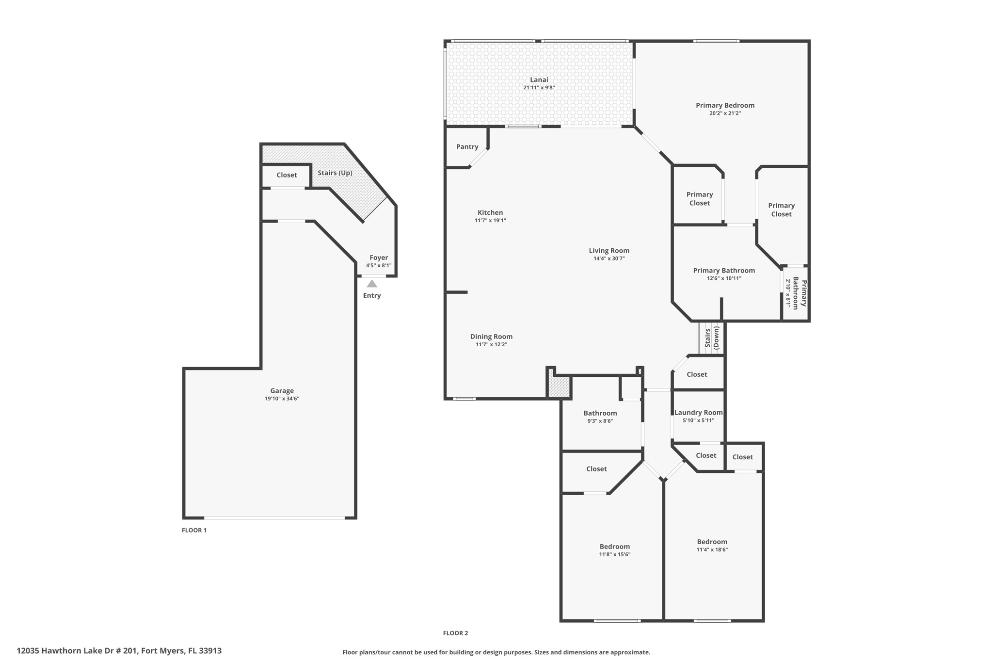
Combined
Floor-1
Floor-2
Combined
Floor-1
Floor-2